Coming Soon MLS# 26023255

431 Ridge Meadow Lane, Washington, MO 63090

Subdivision: Ming Estates

List Price: $689,900

6

Bedrooms

4

Baths

4,228

Area (sq.ft)

$163

Cost/sq.ft

2 Story

Type

1

Days on Market
Call Agent

Description

A true estate presence in sought-after Ming Estates — designed for those who need space without compromise! Set on a rare .58-acre corner lot in Washington, MO, this exceptional brick-front home offers over 5,900 sq ft of finished living space, paired with extensive recent upgrades that allow you to step right into a fully realized home — no projects, no waiting. From the moment you enter, the scale is undeniable. A dramatic two-story foyer with arched and barrel-rolled ceilings creates a grand welcome, framed by a formal dining room and a private office or reading room — spaces that feel both refined and intentional. At the heart of the home, the kitchen was built to handle real life at full capacity — featuring custom cabinetry, granite countertops, center island, pantry, and planning desk — all opening seamlessly into the vaulted great room with gas fireplace. It’s the kind of layout that keeps everyone connected, whether you're hosting a crowd or managing the rhythm of everyday life. Step outside and the experience continues. The newly completed $49,000 composite deck with integrated post lighting offers a polished outdoor extension — overlooking the expansive corner lot and creating the perfect backdrop for evenings, gatherings, and everything in between. Upstairs, five true bedrooms provide a rare level of flexibility — ideal for larger households, multi-use spaces, or simply room to grow. The vaulted owner’s suite stands apart as a private retreat, complete with its own gas fireplace, jacuzzi tub, and spacious bath. The finished walkout lower level adds an entirely separate living experience — featuring a full second living area, rec/media space, full bath, and a 6th sleeping area or guest suite. Whether for extended family, long-term guests, or private quarters, the possibilities here are exceptional. Seller is offering 1 year home protection plan for added buyer confidence! Recent improvements have already elevated the home: • New Roof – $29,000 (May 2025) • Composite Deck – $49,000 (July 2025) • Fresh Interior Paint (Sept 2025) • LVP Flooring in Lower Level (Sept 2025) • New Carpet in 6th Bedroom (Sept 2025) • $10,000 Insulation & Pest Treatment (Aug 2025) This is where space, function, and lifestyle come together in all the right ways!

Property Information

List Price $ 689,900
Original Price $ 689,900
Status Coming Soon
MLS# 26023255
Bedrooms 6
Full baths 3
Half baths 1
Main Floor Full Baths 3
Sq. Ft. Above 4,228
Lot Size
Acres 1
Subdivision Ming Estates
Municipality Washington
School District Washington
County Franklin
Property Type Residential
Style 2 Story
Style Description
Transaction Type
Special Conditions Standard
Type
Building Exterior Amenities Association Management,Common Ground
Building Style Colonial
Ownership
Special Description Standard
Appliances Some Stainless Steel Appliance(s),Electric Cooktop,Dishwasher,Disposal,Ice Maker,Microwave,Electric Oven

Additional Information

Elementary School Marthasville Elem.
Jr. High School Washington Middle
Sr. High School Washington High
Association Fee $1,010/Annually
Architecture Colonial
Construction Concrete
Garage Spaces 3
Carport Spaces 0
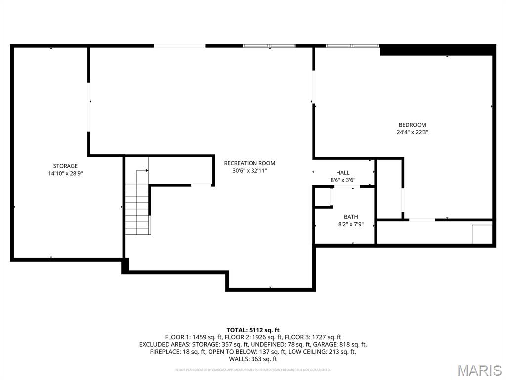
Basement Description 8 ft + Pour,Bathroom,Egress Window,Exterior Entry,Partially Finished,Full,Sleeping Area,Storage Space,Sump Pump,Walk-Out Access
Fireplace Type Bedroom,Gas,Great Room
Fireplace Location
Lot Dimensions .58 Acre
Special Areas
Cooling Ceiling Fan(s),Central Air,Dual,Electric,Zoned
Sewer Public Sewer Sewer
Heating Forced Air
Water Public
Heat Source
Kitchen
Appliances Stainless Steel Appliance(s),Electric Cooktop,Dishwasher,Disposal,Ice Maker,Microwave,Electric Oven
Dining
Interior Decor Breakfast Bar,Ceiling Fan(s),Crown Molding,Custom Cabinetry,Double Vanity,Eat-in Kitchen,Entrance Foyer,Granite Counters,High Ceilings,Kitchen Island,Open Floorplan,Pantry,Separate Dining,Soaking Tub,Storage,Two Story Entrance Foyer,Vaulted Ceiling(s),Walk-In Closet(s)
Property Tax $5,134

Map Location

Rooms Dimensions

Room Dimensions (sq.rt)
Great Room (Level-Main) 27 x 25
Kitchen (Level-Main) 16 x 15
Breakfast Room (Level-Main) 17 x 13
Dining Room (Level-Main) 15 x 12
Office (Level-Main) 14 x 14
Primary Bedroom (Level-Second) 21 x 19
Bedroom 2 (Level-Second) 14 x 13
Bedroom 3 (Level-Second) 14 x 12
Bedroom 4 (Level-Second) 14 x 10
Bedroom 5 (Level-Second) 11 x 11
Bedroom (Level-Lower) 24 x 22
Recreation Room (Level-Lower) 32 x 31
Laundry (Level-Main) 7 x 7

Change History

Listing Courtesy of Keller Williams Chesterfield - [email protected]